Glen Waverley School Zone

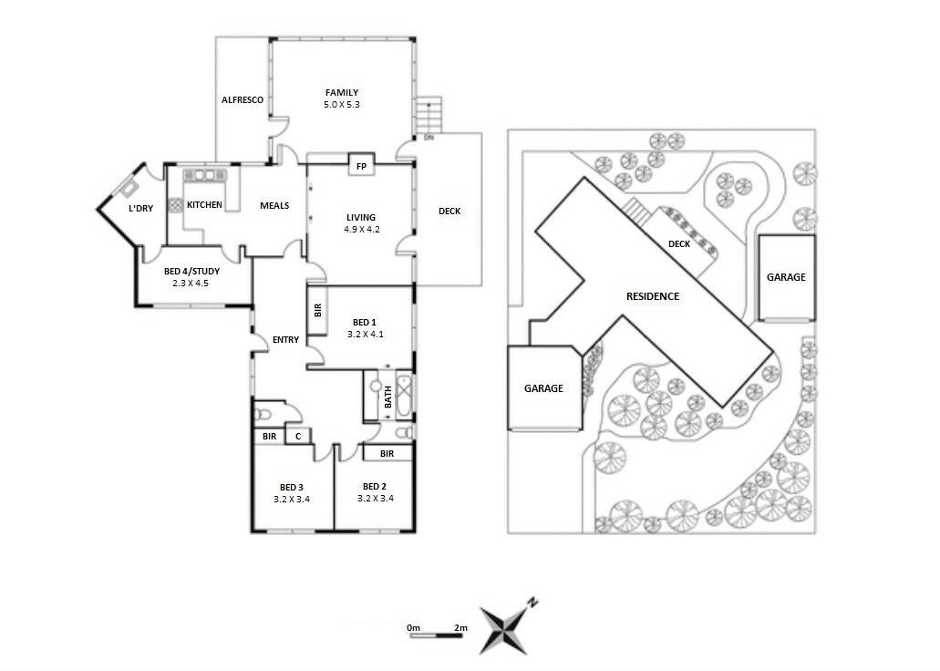
Original brick home with 3 bedrooms + study (or could be used as a 4th bedroom), all bedrooms have built in robes and the master bedroom with full ensuite. Featuring a spacious lounge, huge family room that opens out to an outside decking area with views to the Dandenongs. Kitchen has electric induction cook top and wall oven, together with a good sized meals area plus large laundry room.

Other features include: Ducted heating, polished floors throughout, gas hot water system, 2 outdoor entertaining areas, double lock up garage plus a large additional garage shed.

Situated in a prime Glen Waverley location, within the highly sought after Glen Waverley Primary & High school zones (STSA) and within walking distance to the Glen Shopping Centre, Glen Waverley Station/buses, the popular Kingsway entertainment strip & easy access onto M1 freeway.  

4 2 2
Available Leased
Address 31 Clifford St, Glen Waverley
Price $510 per week
Property Type Rental
Property ID 1050
Category House

Agent Details

Thomas Lee photo

Thomas Lee

0432 000 118
View Profile
Cindy Lee photo

Cindy Lee

0434583888
View Profile