Prime Location, Within Walking Distance to Mitcham Station

 

Prominently positioned in a central location and close to everything you need, within easy walking distance to Mitcham train station, schools and close to Brentford Square shopping and Charles Rooks Reserve.

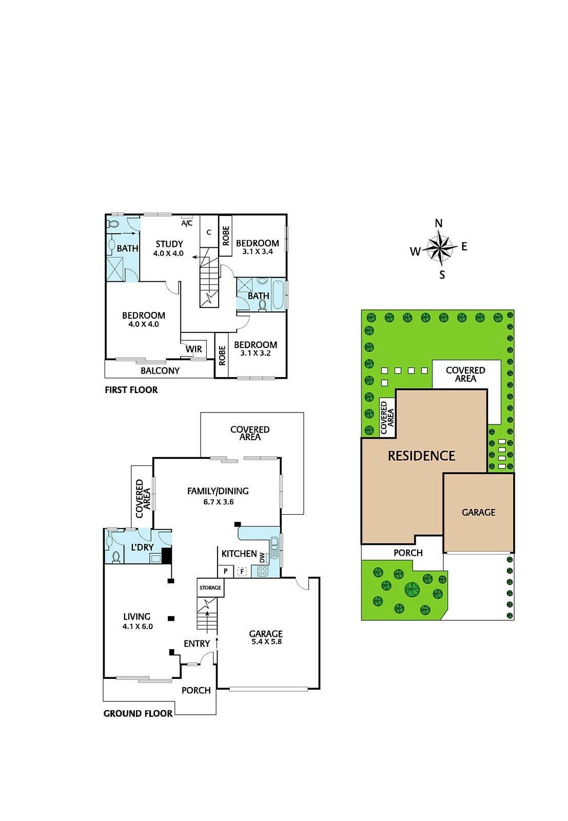
This stunning 3 bedroom double storey house is quietly nestled in the sought after Madison Garden Estate. Modern urban life-style living offering landscaped parklands, shaded walking tracks and communal BBQ facilities..

Downstairs comprises of a spacious lounge through to the kitchen with gas hot plates, under bench oven and dishwasher, together with a meals/family area opening out to back garden. Downstairs is also serviced by a powder room and full laundry. 

Upstairs features 3 good-sized bedrooms, master with full Ensuite and WIR. Other bedrooms with built in robes, a sparkling central bathroom and the landing area with split system, making it perfect for a study area.

Other features include: Ducted heating, evaporative cooling & double lock up garage with remote control and internal assess. 

 

3 2 2
Available Leased
Address 5 Autumn Gr, Mitcham
Price $740 per week
Property Type Rental
Property ID 1212
Category Townhouse

Agent Details

Thomas Lee photo

Thomas Lee

0432 000 118
View Profile
Cindy Lee photo

Cindy Lee

0434583888
View Profile